Добро пожаловать на http://vipplan.ru

Випплан Березовский - это тысячи проектов домов в нашем каталоге!

Вы всегда сможете найти для себя проект дома вашей мечты! Даже если этого не случилось, мы готовы в любую минуту предложить проект индивидуального дома.

Забыли пароль?
Вы еще не регистрировались?

Перейдите по ссылке ниже на страницу регистрации.

Регистрация...

Внимание!!!

В проектную документацию могут быть внесены изменения любой сложности, в соответствии в Вашими пожеланиями!

Полезные статьи

Окна в доме

От хорошего стеклопакета зависит почти 50% теплостойкости всего дома. Ведь на проемы в окнах приходится до 45% тепловых потерь дома. Поэтому хорошие стеклопакеты не пропускают тепло из комнаты и должны противостоять проникновению ветра, влаги и холода с наружной стороны....

Выбор бригады строителей в Березовском

Перед началом строительства дома перед будущим хозяином загородной недвижимости в Свердловской области обозначится несколько вариантов: обратиться в строительную компанию, специализирующуюся на малоэтажном коттеджном строительстве, воспользоваться услугами частной бригады; строить самому "своими руками"....

Проекты домов и коттеджей > Каталог проектов домов > Одноэтажный дом с мансардой, навесами и гаражом на две машины Vg3968

Одноэтажный дом с мансардой, навесами и гаражом на две машины Vg3968

Одноэтажный дом с мансардой, навесами и гаражом на две машины
Зарегистрируйтесь

Проект № Vg3968


Техническое описание
Общая площадь: 138.25 м2
Жилая площадь: 42.65 м2
Высота здания: 7.14 м
Размеры дома: 14.09м×23.01м
Кол-во комнат: 3
Цокольный этаж: нет
Гараж: нет
Мансарда: есть

Kонструкция
Фундамент: монолитная плита
Перекрытия: сборные плиты

Архитектурный раздел
Конструктивный раздел
Цена проекта: АР+КР - 52 000
Одноэтажный дом с мансардой, навесами и гаражом на две машины с размерами здания 14,09 х 23,01 м. Фундамент - монолитная ж/б плита под всей площадью дома. Под стойки навесов монолитная ж/б стена в грунте (щелевой). Наружные стены - газобетонные блоки с утеплением минеральной ватой/обрешеткой, вент.зазором/ контробрешеткой и отделкой сайдингом. Внутренние стены - газобетонные блоки. Перегородки - газобетонные блоки. Пол 1 этажа - пол по монолитной плите. Межэтажное перекрытие - сборные ж/б плиты перекрытия. Крыша - многоскатная. Кровля - металлочерепица. Окна — металлопластиковые.
Генплан застройки участка / Паспорт проекта 7000 руб / 10000 руб
Инженерный раздел (полный) 69000 руб
Смета на строительство 34500 руб
Теплотехнический расчет материалов стен Бесплатно
Стоимость проекта со незначительнми изменениями 42050 руб
Стоимость проекта со средними изменениями* 71900 руб
Стоимость проекта со значительными изменениями** 74700 руб

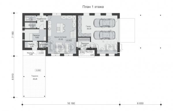
План первого этажа


Прихожая - 3,40 м2
Кухня-гостиная - 27,33 м2
Гараж - 34,79 м2
Предбанник - 3,23 м2
С/у - 1,90 м2
- 1,90 м2
Холл - 4,30 м2
Кабинет - 7,98 м2

План мансардного этажа


Холл - 10,75 м2 (11,99 м2)
Спортзал - 29,31 м2 (41,92 м2)
Спальня - 7,21 м2 (8,88 м2)
Спальня - 8,11 м2 (9,76 м2)
Одноэтажный дом с мансардой, навесами и гаражом на две машины Одноэтажный дом с мансардой, навесами и гаражом на две машины Одноэтажный дом с мансардой, навесами и гаражом на две машины Одноэтажный дом с мансардой, навесами и гаражом на две машины
Внесение изменений и привязка к участку строительства

В любой из проектов от компании VIPplan - Березовский по вашему желанию могут быть внесены изменения в материалы стен, материалы наружной отделки дома, а также будет произведена адаптация проекта под конкретный регион строительства (с учетом грунтов региона, геологических особенностей вашего участка и местных климатических условий) - БЕСПЛАТНО !!! (кроме проектов со скидкой и проектов наших партнеров).

Любой из проектов, размещенных на сайте berezovskiy.vipplan.ru мы можем выполнить из требуемых вам строительных материалов: ячеистый бетон (газобетон, пеноблок), керамоблок, кирпич, шлакоблок, бетонный блок, дерево (брус, клееный брус), каркасная технология (деревянный каркас, металлокаркас (ЛСТК)).

Фасад дома и его наружную отделку так же возможно выполнить с применением различных облицовочных материалов: структурной штукатурки, (с утеплителем и без), сайдингом (пластиковый или металлосайдинг), фиброплитами, кирпича.

 
6 Избранные
проекты

Доставка проектов по России: Москва (Московская область), Санкт-Петербург (Ленинградская область), Краснодар, Ростов-на-Дону, Ставрополь, Сочи, Волгоград, Новосибирск, Белгород, Брянск, Воронеж, Саратов, Хабаровск, Астрахань, Нальчик, Владикавказ, Екатеринбург, Тюмень, Самара, Нижний Новгород, Казань, Пермь, Уфа, Челябинск, Красноярск, Ханты-Мансийск, Иркутск, Курган, Оренбург, Омск, Томск, Барнаул, Новокузнецк, Кемерово, Абакан, Чита, Якутск, Южно-Сахалинск, Петропавловск-Камчатский и страны ближнего зарубежья: Белоруссия, Украина, Казахстан